
Планировка пространства – это не просто стены и метры, а то, как вы будете жить каждый день: где пить утренний кофе, куда складывать вещи и поместится ли ваш диван. Одни варианты делают жизнь простой и удобной, другие – превращают ее в постоянную борьбу за каждый сантиметр.
Разбираемся, какие планировки сегодня в тренде, какую выбрать под свои задачи и на что смотреть, чтобы не пожалеть.
Планировка квартиры – это архитектурная организация внутреннего пространства, которая определяет расположение, размер, форму и взаимосвязь всех помещений: жилых комнат, кухни, санузлов, прихожей, коридоров и мест хранения. Проще говоря, это «внутренняя карта» вашего будущего жилья: где какие комнаты находятся, как они соединены между собой, где расположены окна и двери.
От планировки напрямую зависит, сможете ли вы удобно расставить мебель, насколько комфортно будет перемещаться по квартире и хватит ли всем света.
| Банк | Ставка | Сумма | Взнос |
| МКБ | от 0,1% | до 60 млн | от 30% |
| ВТБ | от 6% | до 12 млн | от 20,01% |
| ВТБ | от 6% | до 9 млн | от 20,1% |
Создание планировки – сложный процесс, в котором участвуют архитекторы, проектировщики и дизайнеры. Вот основные принципы, которыми они руководствуются:
Метраж сам по себе не гарантирует удобство. Даже небольшая квартира может быть комфортной, если планировка продумана, а пространство зонировано рационально. Например, студия площадью 20–25 м² с грамотно организованной кухней-гостиной и нишей для хранения может быть удобнее, чем просторная квартира с неэффективной планировкой.
Что на самом деле важно
|
Соотношение жилой и общей площади |
Жилая площадь должна быть достаточной для размещения жильцов, а нежилая (кухня, коридор) – практичной, не слишком просторной и не тесной |
|
Форма помещений |
Удобны квадратные или близкие к квадрату комнаты Нестандартная геометрия (скосы, углы) мешает расставить мебель и «съедает» полезные метры |
|
Количество и расположение окон |
Оптимально: 1 окно на 10–12 м² Это обеспечивает нормальное освещение и комфорт |
|
Высота потолков |
Минимум – 2,5 м, комфортно – от 2,7 м В высоких комнатах можно делать второй уровень |
|
Площадь ключевых помещений |
Кухня: от 8 м² (комфортно), от 10 м² с островом Спальня для пары: 14–16 м² Детская: от 12 м² |
|
Размер коридора и прихожей |
Слишком просторный – бесполезная трата метров, слишком тесный – неудобно Оптимальна прямоугольная форма |
|
Наличие доп. помещений |
Кладовка, гардеробная, балкон/лоджия сильно повышают комфорт (хранение, отдых) |
Идеальная планировка квартиры– понятие субъективное, но есть объективные законы эргономики, которые работают всегда. Хорошая планировка – та, где нет «темных» коридоров, проходных комнат и бессмысленных закоулков, а есть логика. Важно, чтобы метры работали на вас, а не вы на них.
Разберем подробнее идеальную планировку для разных квартир.
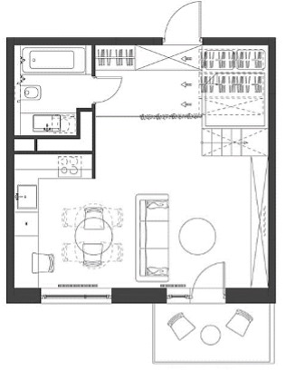
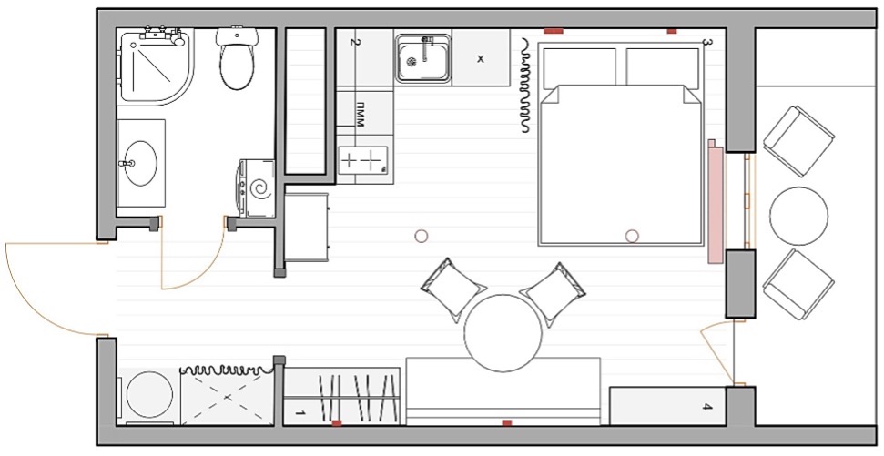
Студия – это единое пространство, где нужно уместить все: кухню, спальню, гостиную и часто рабочее место. Главная задача – грамотное зонирование без ущерба для ощущения простора.
Идеальные параметры:
Основные типы планировок студий:
|
Характеристика |
Идеи для обустройства |
|
Прямоугольная |
|
|
Зоны выстраиваются последовательно: при входе – кухня (привязана к коммуникациям), в глубине – спальня (у окна, в тишине) |
Важно не перекрыть свет из окна Мебель лучше ставить вдоль стен Для приватности спальню отделяют легкой перегородкой, стеклянным блоком или плотной шторой |
|
Квадратная |
|
|
Центр комнаты становится «ядром», вокруг которого удобно организовывать зоны |
Хорошо работает диагональное размещение мебели В центре можно поставить диван или обеденный стол, а кухню и спальню расположить по углам |
|
С нишами |
|
|
Нестандартная архитектура с углублениями – готовая основа для функциональных зон |
Ниша идеально подходит для спальни или рабочего кабинета Важно предусмотреть в ней дополнительное освещение, чтобы избежать темных углов |
Рекомендации по зонированию:
Кому подходит:
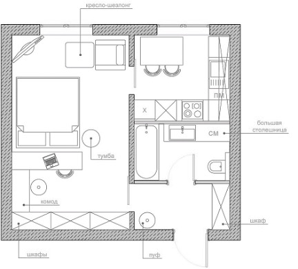
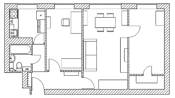
Главное отличие от студии – наличие отдельной кухни и комнаты. Это уже больше приватности. Задача – сделать так, чтобы единственная комната не была проходной и выполняла функции и спальни, и гостиной.
Идеальные параметры:
Лучшие планировки квартир с одной комнатой:
Примеры хороших планировок:


Рекомендации:
Кому подходит:
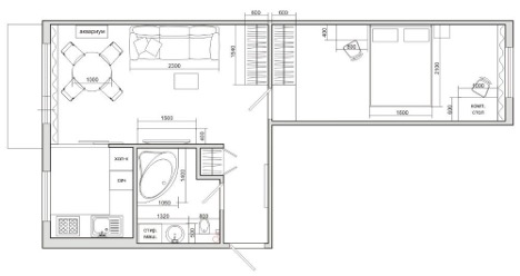
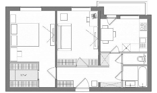
Здесь уже появляется пространство для маневра. Продуманная планировка двушки должна давать возможность разделить «общее» и «личное».
Идеальные параметры:
Типы планировок:



Если квартира малометражная двухкомнатная: часто обе комнаты маленькие. Тогда правила планировки квартиры можно изменить и объединить кухню с гостиной (снести перегородку), а освободившуюся бывшую маленькую комнату сделать полноценной спальней. Получается евродвушка – современный и очень удобный вариант.

Рекомендации:
Кому подходит:
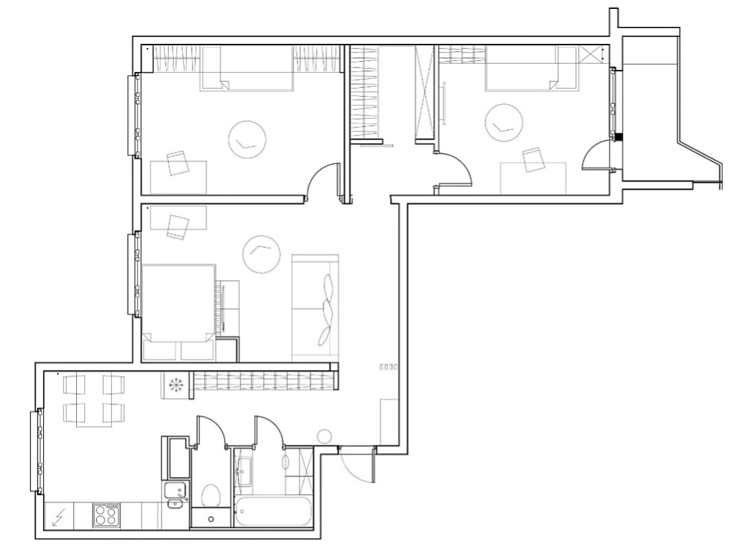
Простор для творчества и возможность учесть потребности каждого члена семьи. Хорошие планировки квартир с тремя комнатами считаются идеальным жильем для семьи с детьми или для тех, кому нужен отдельный кабинет.
Идеальные параметры:
Типы планировок:


Принципы планировки:
Кому подходит:
Грамотная внутренняя планировка повышает комфорт проживания и эффективность использования пространства.
Основные принципы:
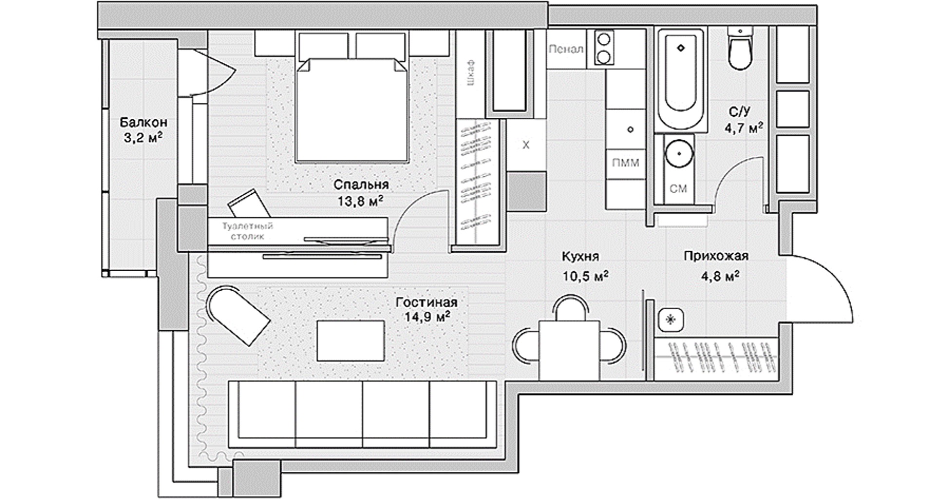
Если последние годы были эпохой открытых пространств, студий и квартир-лофтов, то 2026 год – время изоляции и четкого зонирования. Люди устали от постоянной открытости, когда кухня, гостиная и спальня существуют в одном пространстве.
Лучшая планировка комнат в доме на 2026
|
Однушка с изолированной кухней |
Кухня отделена от комнаты – нет запахов и шума в спальне |
|
Евродвушка |
Кухня-гостиная + отдельная спальня – простор и приватность |
|
Классическая трешка |
Кухня, гостиная, спальня, детская/кабинет – для семьи |
|
Трансформер |
Раздвижные перегородки – пространство меняется под задачи |
Тренды в дизайне:
Идеальная квартира 2026: четкое разделение на зоны, тихие спальни, удобная связь кухни и гостиной, место для работы, продуманное хранение, никаких «слепых» зон и пустых коридоров.

Выбирая квартиру, легко попасть в ловушку красивой картинки из рекламы. Но даже просторное жилье может оказаться неудобным из-за ошибок планировки. Мы собрали самые распространенные «проблемные» решения, чтобы вы точно знали, как распланировать дом внутри правильно.
|
Тип проблемы |
Почему плохо |
Как распознать |
|
Комната-пенал |
Мебель только вдоль стен, темно, не влезает двуспальная кровать |
Соотношение сторон хуже 1:1,5 (например, 3×6 м) |
|
Проходные комнаты |
Нет приватности, шум, конфликты режимов |
В спальню нужно идти через гостиную или кухню |
|
Огромный коридор |
Бесполезная трата метров |
Коридор больше 10-12 м² и не используется функционально |
|
Сложная геометрия комнат |
Мебель не встает к стенам, «мертвые зоны», дорогая отделка |
Полукруглые стены, острые углы, эркеры во всех комнатах |
|
Панорамные окна без учета сторон света |
Летом адски жарко, некуда ставить мебель |
Южная/западная сторона + остекление от пола до потолка |
|
Санузел прямо у кухни открытой планировки |
Запахи из туалета сразу в обеденную зону |
Дверь в туалет рядом с кухонной зоной |
|
Нет мест для хранения |
Негде хранить вещи, хаос |
Нет гардеробных, кладовок, ниш под шкафы |
Ниже представлено несколько проблемных зон в планировке квартир:



При выборе планировки ориентируйтесь не только на общую площадь, но и на функциональность пространства.
Как выбрать планировку дома
|
Критерий |
Рекомендации и параметры |
|
Состав семьи и образ жизни |
Один человек – студия или 1-комнатная Пара без детей – 1-2 комнаты Семья с ребенком – 2-3 комнаты Большая семья – 3+ комнаты с отдельными спальнями и гостевым санузлом |
|
Потребности в зонах |
Подумайте заранее: нужен ли кабинет, детская/игровая, место для хобби (спорт, творчество), гостевая комната |
|
Метраж и форма помещений |
Идеальная форма комнат – квадрат или прямоугольник (соотношение сторон 4:3) Минимальная ширина коридора – 1,2 м Кухня – от 8–10 м² (для комфортной готовки) Спальня – от 12–14 м² на человека Гостиная – от 16 м² |
|
Освещенность и инсоляция |
На каждые 10–12 м² желательно одно окно Жилые комнаты – на восток/юг Кухня и подсобки – на запад/север Квартиры с окнами на разные стороны лучше проветриваются |
|
Зонирование |
У входа – гостиная, прихожая, гостевой санузел В глубине – спальни, детские, основной санузел Хоззона (кухня, постирочная, кладовая) – рядом с коммуникациями |
|
Высота потолков |
Минимум 2,5 м Оптимально – 2,7 м и выше (дает ощущение простора и возможности для дизайна) |
|
Дополнительные элементы |
Балкон/лоджия – для отдыха и хранения Гардеробная/кладовая – спасает от лишних шкафов Второй санузел – для семьи от 3 человек |
|
Перспективы |
Закладывайте запас пространства: дети, переезд родственников, смена работы (нужен кабинет) – жизнь меняется |
|
Расположение коммуникаций |
«Мокрые зоны» (кухня, санузлы) лучше располагать компактно или друг над другом – это дешевле и надежнее |
|
Эргономика |
Проходы между мебелью – 70–90 см Перед шкафом – не менее 1 м (чтобы открывать дверцы) На кухне правило «рабочего треугольника»: холодильник–мойка–плита с периметром не больше 6 м |
Лучшая планировка дома – та, где заранее продумано, как вы будете жить. Не просто «красиво», а удобно именно вашей семье с вашими привычками.
Главные принципы:
Перепланировка квартиры – это изменение конфигурации жилого помещения, которое вносится в технический паспорт. Простыми словами: это любые работы, после которых план вашей квартиры перестает совпадать с официальным документом БТИ.
Что относится к перепланировке:
Как узаконить перепланировку:
Мы собрали подборку самых распространенных ошибок при планировке квартиры и дома, которые превращают жизнь в постоянный источник раздражения.
|
Ошибка |
В чем проблема |
Как правильно |
|
Экономия на розетках |
Весь дом в удлинителях, провода под ногами |
Разметить розетки до ремонта: у дивана, кровати, на кухне с запасом |
|
Нет мест для хранения |
Вещи некуда складывать, шкафы громоздкие |
Закладывать кладовую или гардеробную на этапе планировки |
|
Узкие проходы |
Мебель поставили, а пройти нельзя |
Проходы минимум 70–90 см, перед шкафом – 1 м |
|
Нарушенный «треугольник» на кухне |
Между плитой, мойкой и холодильником наматываешь километры |
Сумма сторон треугольника не больше 6 м |
|
Игнорирование сторон света |
Спальня печет летом, кухня вечно темная |
Спальни на восток/юг, гостиная на запад, кухня на север |
|
Нет грязевой зоны у входа |
Грязь с улицы сразу в квартире |
Предусмотреть место, чтобы разуться и оставить обувь |
|
Слишком маленькая кухня |
Готовить неудобно, вдвоем не развернуться |
Минимум 8–10 м² или объединять с гостиной |
|
Эркеры и ниши без функционала |
Красиво, но мебель не поставить, угол мертвый |
Оценивать функциональность каждого выступа |
|
Темные стены в маленькой комнате |
Комната визуально съеживается |
Светлые оттенки, яркое – только в деталях |
|
Плохой свет |
Одна люстра под потолком, читать негде |
Общий свет + локальный в каждой зоне |
Для углубленного изучения темы про удобные планировки квартир можно обратиться к следующим источникам и материалам, которые помогут разобраться в трендах, критериях выбора, примерах удачных и неудачных решений:
Евродвушка – кухня-гостиная + отдельная спальня. Дает и простор, и приватность.
Квадратная или близкая к квадрату (соотношение сторон не больше 1:1,5). В узких «пеналах» неудобно ставить мебель.
Желательно. Даже 1,5–2 м² под кладовку спасут от хаоса с вещами.
Нарисуйте на плане свою мебель и пройдите маршруты: как входите, готовите, ложитесь спать. Если все влезает и удобно – планировка хорошая.